Opis

Na rubu netaknute prirode poluostrva Akamas, Riviera Residences spaja ekskluzivitet boutique kompleksa od svega 16 vila sa neposrednom blizinom prestižnih rizorta, peščanih plaža i očaravajućih pejzaža. Vila 7 pruža vrhunski komfor: panoramski prozori koji stapaju enterijer sa Jonskim morem, otvoreni plan boravka za maksimalnu prostranost, prirodni materijali i pametna kućna tehnologija koji garantuju dugotrajan kvalitet. Zahvaljujući profesionalnom upravljanju nekretninom, možete bezbrižno uživati ili ostvarivati stabilan prihod od iznajmljivanja – idealna kombinacija hedonizma i sigurnog ulaganja.

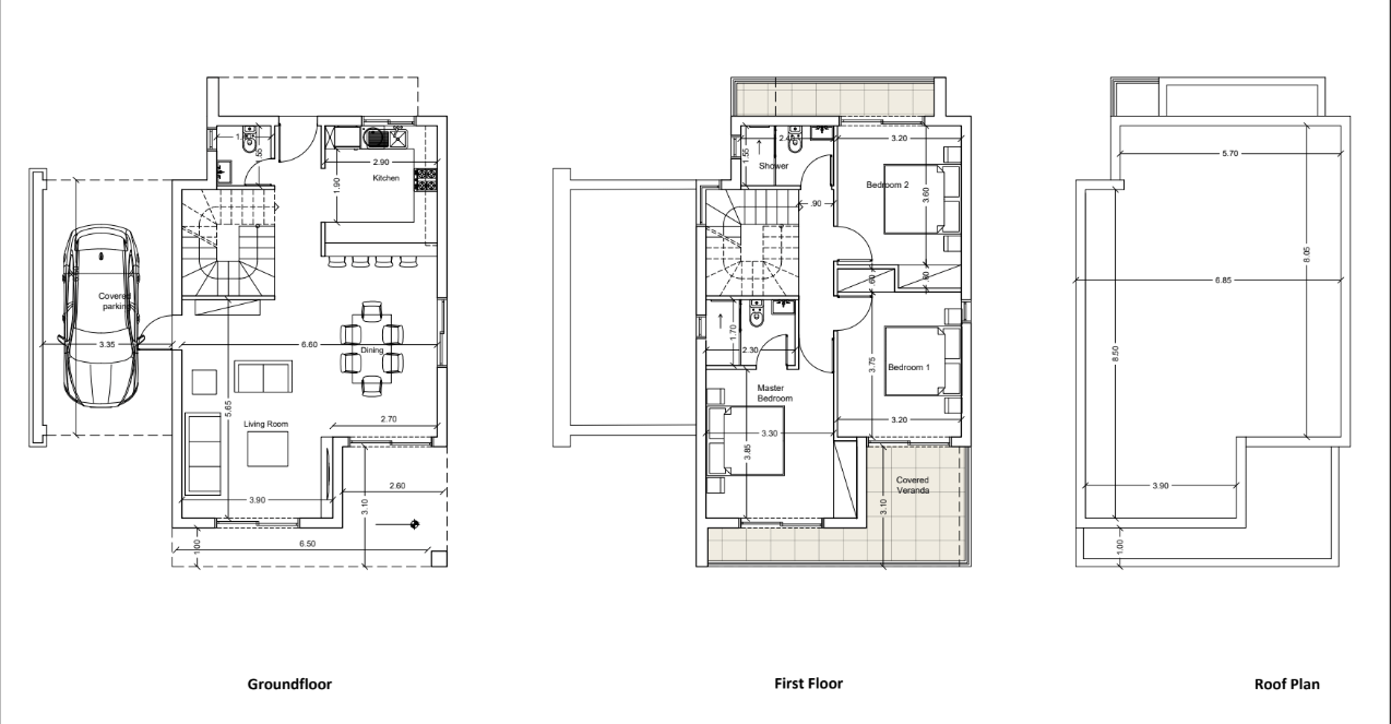
Glavne karakteristike

• Parcela: cca 625 m² | Ukupna natkrivena površina: cca 194,2 m²
• 3 spavaće sobe | 3 kupatila en suite
• Natkrivena terasa cca 32,9 m² – savršena za život na otvorenom tokom cele godine
• Natkriveni parking cca 23,8 m² + mesta za goste
• Privatni beskonačni bazen i uređeno mediteransko dvorište sa pogledom na more
• Zatvoren kompleks sa 24/7 obezbeđenjem i video-nadzorom
• Prvoklasna oprema: smart-home, podno grejanje, VRF hlađenje, prirodni kamen, hrastov parket
• Usluga iznajmljivanja i konsijerž – pasivan prihod bez brige
• 5 min peške do plaže White River & Sea Caves | 10 min vožnje do Coral Bay-a
• Komšiluk: Cap St Georges Resort, privatna škola TLC, golf tereni, marina i budući vodeni park
________________________________________

Lokacija

Slični oglasi