Opis

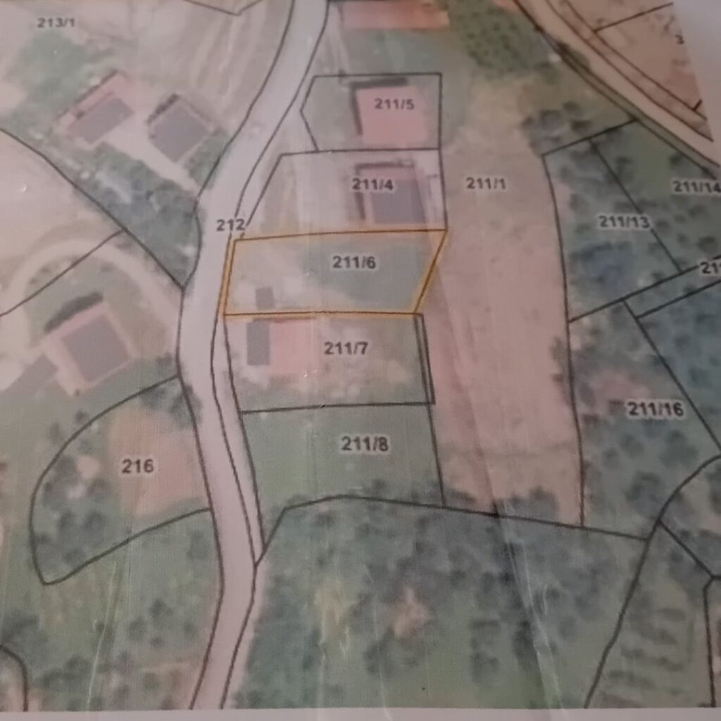
📍 Lokacija: Starčevica – Rebrovac, u neposrednoj blizini ulice Tuzlanske

📏 Površina: 551 m²

💰 Cijena: 50.000 KM

🛣️ Kompletna infrastruktura – voda, struja, kanalizacija, asfaltni prilaz

📑 Dokumentacija uredna – vlasništvo 1/1

🏗️ Dozvoljena stambena izgradnja

📋 Projekat prošao reviziju

🛠️ Urađeno geološko ispitivanje zemljišta

SAVRŠENA PRILIKA ZA INVESTICIJU!

Odlična lokacija – u mirnom dijelu grada, blizu svih sadržaja

Idealno za izgradnju porodične kuće ili stambene zgrade

Već spreman projekat i odobrena gradnja – ušteda vremena i troškova

Sigurna investicija – zemljište sa urednim papirima i pripremljenom dokumentacijom

📞 Ne propustite ovu rijetku priliku!

Za više informacija i dogovor oko obilaska, kontaktirajte: +38765334483

Lokacija

    Slični oglasi